
Fremvisning
Book en fremvisning
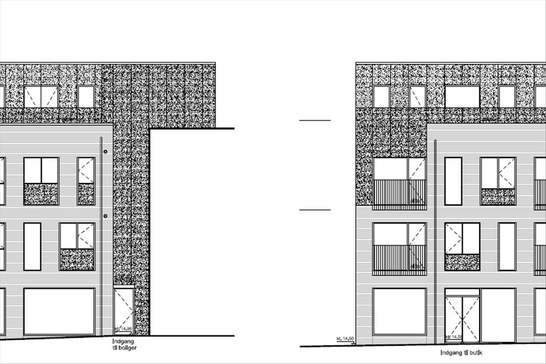
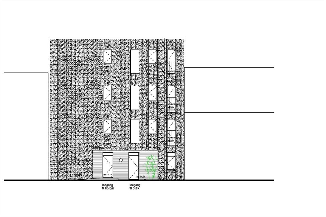
Taastrup Hovedgade 1232630 Taastrup
Andre
tradeTypeProjektejendom
m²394 m²
3.500.000 kr.



Har du spørgsmål om ejendommen eller ønsker du at komme forbi til en uforpligtende snak? Så kontakt os her


Projektchef, partner, ejendomsmægler og valuar, MDE
20 16 19 1358 58 70 5246 33 33 33bge@edc.dkHar du spørgsmål om ejendommen eller ønsker du at komme forbi til en uforpligtende snak? Så kontakt os her


Projektchef, partner, ejendomsmægler og valuar, MDE
20 16 19 1358 58 70 5246 33 33 33bge@edc.dk